

极简主义是什么极简主义风格的居室设计极简主义(Minimalism),并不是现今所称的简约主义,作为对抽象表现主义的反动而走向极至,以至原初的物自身或形式展示于观者面前为表现方式,意图消弥作者借着作品对观者意识的压迫性,极少化作品作为文本或符号形式出现时的暴力感,开放作品自身在艺术概念上的意像空间,让观者自主参与对作品的建构,终成为作品在不特定限制下的作者。以简单到极致为追求,是一种设计风格,感官上简约整洁,品味和思想上更为优雅。
极简主义是一种生活态度,更是一种生活习惯。极简主义追求生活以及艺术上极致简约,舍弃华而不实的装饰,保留纯粹的生活所需,是精神生活的简化。在这个物欲横流的社会,极简主义就像是一股清流,涤荡着人的内心,将人们的欲望从物质转移到自己和身边的人身上,因此,简单的生活至幸福。
其实,有些时候“少即是多”(less is more),拥有至少的物件才能放下一切包袱,过上更好的生活。
工程地址:新会珑城半山别墅区
案例名称:《德 · 舍》
总设计师:孙纪渊
监 理:彭 韵
设计风格:极简主义
设计说明:
成年人的世界里,没有“容易”二字可言。
如果说做男人是一门技术,那么当父亲就是艺术。
很多人做不到,也学不来。
用失败和成功来区别一个男人是不是很傻。就好像当一个孩子刚刚开始拥有记忆,却发现身边有这样一个具有双重身份的男人站在背后,对于他的熟悉,仿佛一切都生活在成年人的大话里一样。
很梦幻,却又那么的不够真实。
本案业主“深飘”多年,现已为多个孩子的父亲及我们口中的成功人士,跟我们的业主接触久了发现他又跟社会上一般的成功人士又很不一样,追求的和想要的并非一般的物欲享受,更是高层次的精神追求,同为我们追赶学习的对象。
每一段故事,每一个案例,总会发现不一样的东西,找到彼此之间的乐趣。
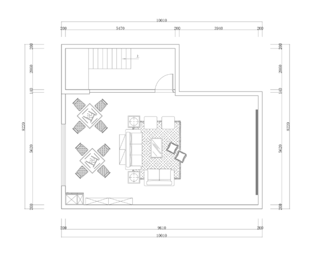
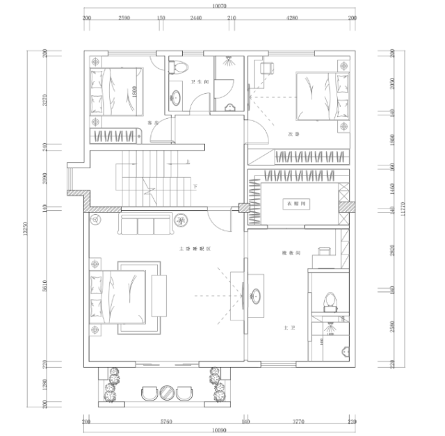
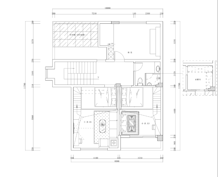
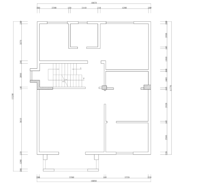
原 建 图



平 面 图



现 场 照 片









良辰吉日,开工大吉




效 果


















结 语
幸福来源于我们对生活的掌控感,在这个极度想刷存在感的社会,有一部分人,不执着金钱,渴望精神的富足,内心的安静、与自己对话,用想象力丰富留白,家居空间极简舒适,没有更多对物质的追求,物尽其用,轻而易举的随时整理家务,随时整理心情,整理自己。
极简,而不凡,更专注一件事。
给自己的人生做减法,让心灵更富足!